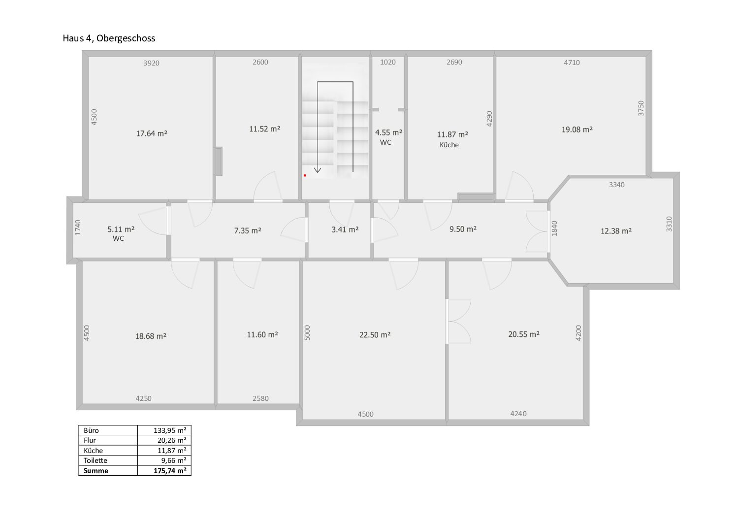
ca. 175 m² Bürofläche – 8 Büroräume – Empfangs- / Flurbereich Küche – 2 Sanitäre Einrichtungen – anteilige Kellerflächen
Das Gelände rund um die Ihlenfelder Straße 88 entwickelt sich zu einem modernen Gewerbecampus, auf dem sich bereits mehrere namhafte Unternehmen, Dienstleister und Institutionen angesiedelt haben.
Dies schafft ein professionelles, lebendiges Arbeitsumfeld und ermöglicht kurze Wege, wertvolle Nachbarschaften und angenehme Synergien zwischen den ansässigen Unternehmen.
Ein weiterer Vorteil: Auf dem Campus entsteht eine neue Kantine, die in Kürze eröffnet. Sie bietet künftig einen regelmäßigen Mittagstisch – ein Pluspunkt für Mitarbeitende, Kunden und Besucher und ein echter Mehrwert im Arbeitsalltag.
Die Mindestmietdauer erfolgt nach Absprache. Die angegebenen Mietpreise verstehen sich zuzüglich der gesetzlichen Mehrwertsteuer.
Zu der angebotenen Bürofläche gehören anteilige Kellerflächen, die entsprechend ihrer Quadratmeterzahl zusätzlich zur Bürofläche in die Mietberechnung einbezogen werden.
Teilen Sie uns kurz Ihre Anforderungen mit – wir melden uns zeitnah bei Ihnen.